The Secret to Learning Anything
How to achieve excellence in learning something
Short on time? Click here
Article presented at the I SIBRACIC.
Article presented at the I Brazilian Symposium on Self-Healing Concrete, held in Porto Alegre in May 2025.
MACHADO, K. R. D. et al. Use of Self-Healing Additive as an Integral Part of the Waterproofing System for Concrete Swimming Pools – Case Study. In: ANAIS SIBRACIC. Porto Alegre, RS: ANTAC, 2025. pp. 121–129.
https://doi.org/10.54236/sibracic.2025.13
Kelvin Rafael Duarte Machado
Alana Paula da Costa Quispe
Mauricio Machado Mendes Peres
Rene Quispe Rodríguez
Gihad Mohamad
The waterproofing of a swimming pool must account for both positive and negative hydrostatic loads. To achieve this, waterproofing systems must withstand such pressures efficiently. Concretes with self-healing additives have the characteristic of sealing the concrete through the crystallization of compounds, blocking the passage of water and reducing its permeability. This work aims to present a case study of the application of a self-healing additive as part of the waterproofing system of a concrete swimming pool, highlighting the gain in productivity, safety, and economy.
Keywords: self-healing, concrete, swimming pools.
The artificial storage of water occurs through constructed reservoirs, such as swimming pools. Among the possible construction processes for swimming pools, building them with reinforced concrete is a viable and safe economic option.
However, waterproofing concrete reservoirs is a problem that requires attention. Concrete has natural porosity as well as the presence of microcracks in the cementitious matrix. When interconnected, these void spaces create pathways for the passage of water and other fluids. Therefore, a concrete structure that can withstand hydrostatic loads must be watertight, with no moisture allowed to pass from one face to the other, due to positive pressures (acting from inside to outside the reservoir) or negative pressures (acting from outside to inside the reservoir).
To solve the waterproofing of a swimming pool, there is a variety of products, which should be selected considering the interferences the pool will be subjected to, such as hydrostatic pressure, deformations, and movements. Available options include polymeric mortars, asphalt membranes, and polyurethane membranes.
To reduce the permeability of concrete, self-healing techniques emerge as mechanisms capable of lowering its absorption and making the structure watertight. Such techniques can be divided into autonomous self-healing using, for instance, microcapsules with bacteria, or autogenous self-healing through the use of mineral additives. For conventional reinforced concrete structures, the use of mineral additives is extremely advantageous due to the simplicity of their preparation.
Self-healing additives act in the presence of water generating crystalline deposits, sealing the pores and microcracks against the transport of fluids and ions through the structure. This not only allows for a watertight structure but also ensures an increase in the structure's lifespan as self-healing makes it difficult for aggressive agents to infiltrate.
Thus, the waterproofing of concrete reservoirs using self-healing additives is a technique that can reduce the need for additional steps, such as the use of cast-in-place membranes, resulting in greater productivity, cost reduction, and a decrease in potential repairs and maintenance.
However, it is essential to understand the action mechanisms of these additives to use them safely. Self-healing additives can only fill cracks of limited size; thus, the design of the concrete structure must be careful and adhere to the Serviceability Limit State of Crack Opening (ELS-W) according to ABNT NBR 6118:2023, keeping them below the maximum size that the additive can address. Consequently, self-healing is more effective for passive cracks, which size can be controlled, while active cracks, such as those stemming from thermal movements, should be treated using other techniques.
The objective of this work is to analyze a case study of the application of a self-healing additive as part of the waterproofing system applied to a reinforced concrete swimming pool.
The studied swimming pool is buried with a capacity of 29,000 liters, with dimensions of 7.00 m x 3.00 m x 1.50 m. Its construction took place in Santa Maria, Rio Grande do Sul, from January to March 2024.
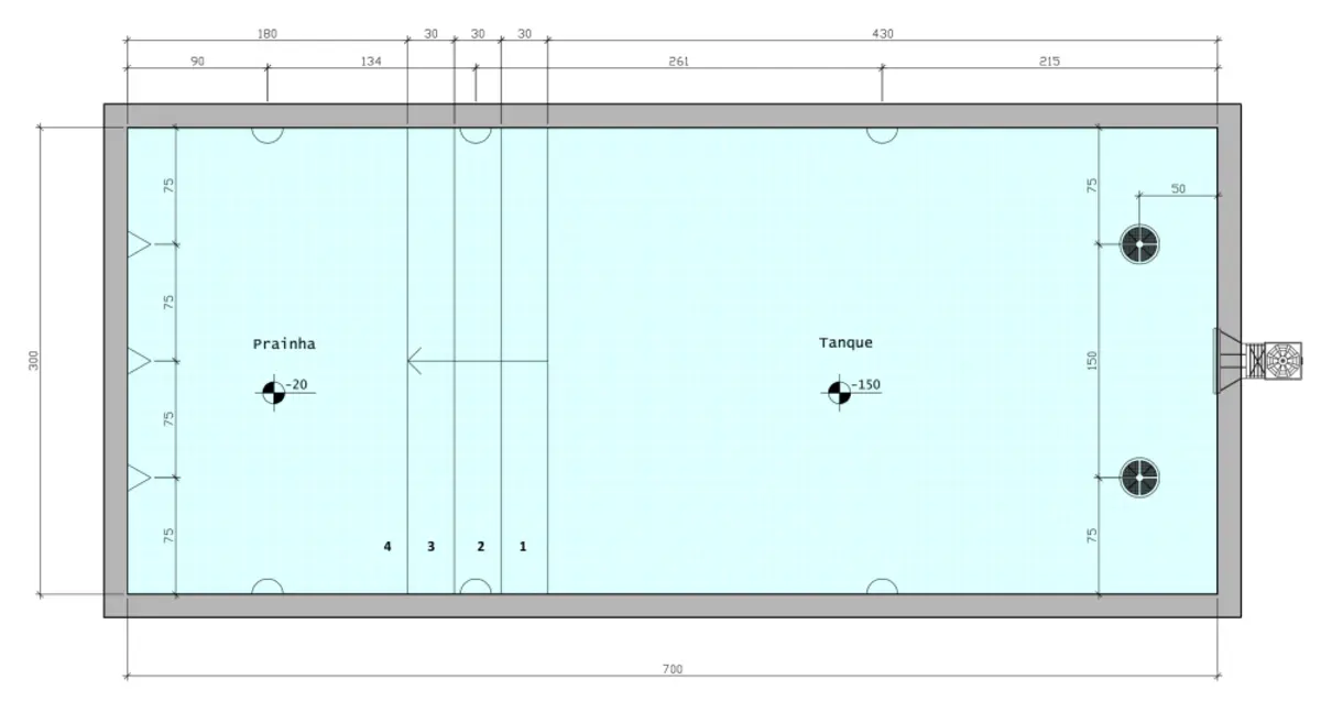
Before the start of construction, it was necessary to conduct planning to understand the execution location, analyze the existing designs, know the soil characteristics, and check for interferences with existing structures. With this information in hand, it was possible to carry out the construction designs for the pool, as shown in Figure 1.
Figure 1 – Floor plan of the pool with details of devices.

Source: Author
The following are the steps developed for the execution of the pool, with special emphasis on constructing the reinforced concrete reservoir and the techniques used to ensure its watertightness.
The foundations were executed with micro-piles with a shaft diameter of 40 cm and a depth of up to 5 m.
For the execution of the external forms, the concept of lost forms was used, as observed in Figure 2 (a), through the construction of masonry panels reinforced with steel bars. For the execution of the internal forms, prefabricated wooden panels were used as shown in Figure 2 (b), modularized in segments of 1.20 m x 1.50 m, allowing for reuse.
Figure 2 – Forms: (a) external in masonry, (b) internal in modular wooden panels.

(a)

(b)
Source: Author
The reinforcements were bent on-site, following the structural design and typical construction details for reservoirs, with part of it observed in Figure 2 (a).
The concreting was performed with ready-mixed concrete, fck 25 MPa, with the addition of the self-healing additive on-site, directly in the concrete truck as shown in Figure 3. The amount of self-healing additive was calculated in advance based on the mass of cement provided by the concrete company. The additive manufacturer recommends the use of 0.8% to 1.0% of powdered additive relative to the mass of cement for use in conventional structures not subjected to chemical agent attacks.
Figure 3 – Addition of the self-healing additive.

Source: Author
After concreting, wet curing of the concrete began, with a water film being cast over it and constant monitoring to prevent water loss through evaporation.
After 24 hours, the internal form was removed.
Once the form removal was done, the installation of piping and devices fixed to the concrete structure through grouting was carried out. Subsequently, a waterproof mortar regularization layer was applied to the walls for tile laying.
After the wet curing period of the mortared coating, the watertightness test was conducted, where the pool was completely filled with water. From then on, the water level was monitored.
After the piping installation, water was released to fill the pipes and check for any leaks.
The pool was considered approved after 144 hours of the watertightness test, exceeding the recommended test time according to ABNT NBR 9574:2008.
The pool was finished with the final tiling and the completion of the hydraulic and electrical installations, including the installation of pumps, filter, and electrical control panel, as seen in Figure 5.
Figure 5 – Completed pool

Source: Author
Below, Tables 1 and 2 demonstrate the cost of executing a waterproofing system on concrete structure without and with the use of self-healing additives, respectively, for comparison purposes. It can be observed that there is a cost saving of up to 14.5% in executing the reinforced concrete reservoir with the use of self-healing additive as the waterproofing element for the studied pool compared to waterproofing with cast-in-place polymeric mortar.
Table 1 – Costs for constructing the concrete reservoir without the use of self-healing additive, reference SINAPI of November 2024 plus quotations.
| Services | Unit | Quantity | Unit Price | Total Price |
|---|---|---|---|---|
| Forms (external + internal) | m² | 30.00 | 169.86 | 5,095.80 |
| Reinforcements | kg | 500.00 | 17.13 | 8,565.00 |
| Concrete | m³ | 8.00 | 677.08 | 5,416.64 |
| Waterproofing with polymeric mortar | m² | 51.00 | 109.98 | 5,608.98 |
| Total | 23,686.52 |
Source: Author
Table 2 – Costs for constructing the concrete reservoir with the use of self-healing additive, reference SINAPI of November 2024 plus quotations.
| Services | Unit | Quantity | Unit Price | Total Price |
|---|---|---|---|---|
| Forms (external + internal) | m² | 30.00 | 169.86 | 5,095.80 |
| Reinforcements | kg | 500.00 | 17.13 | 8,565.00 |
| Concrete | m³ | 8.00 | 677.08 | 5,416.64 |
| Self-healing additive | kg | 22.50 | 51.20 | 1,152.00 |
| Total | 20,229.44 |
Source: Author
From the aforementioned, it can be observed that there is an advantage to executing reinforced concrete reservoirs for swimming pools that utilize self-healing additives. In addition to reducing the execution time, there is a reduction in the total costs involved. Structures executed with this type of solution demonstrate adequate performance concerning watertightness and adherence to the structure's lifespan criteria. However, it is crucial to emphasize the importance of a well-designed structural project that guarantees wall thickness, detailing, and steel coverage, as well as the limitation of cracks within the Serviceability Limit State (ELS-W). Careful execution, respecting the designs, best practices, and standards is fundamental for the success of constructing watertight concrete reservoirs for swimming pools.
Comments
Be the first to comment!
Leave a comment
All comments are moderated before publication.